לחברת רוזס הלזינגר אדריכלים נסיון בתכנון אדריכלי בתחום במגורים מסוגים שונים: תכנון מגורים , תמא 38 והתחדשות עירונית, תכנון מבני ציבור, בניה לגובה ומגדלי משרדים
הדף מציג גלריית פרויקטים בתכנון אדריכלי למגורים בבניה פרטית תמא 38 1/2 המתוכננים עי משרדנו והנמצאים בשלבים שונים
מתחם קפלן פ"ת



תמ"א 38/2 הריסת 2 בניינים ובניית 2 בניינים חדשום בגובה של 9.5 קומות .
סה"כ 120 יח"ד
יזם : גלובלינקס
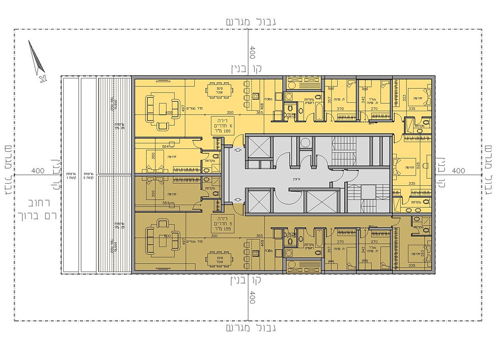
נחלת צבי 5 פ"ת


פרויקט תמ"א 38/2 הריסת ובנייה
סה"כ 65 יח"ד חדשות ב 9.5 קומות
יזם: גלובלינקס
שפירא 28 כניסה א' פ"ת




תכנון במסגרת תמא 2 בפתח תקווה הריסת בניין ישן ובנייה בניין חדש בגובה 9 קומות.
סה"כ 23 יחידות דיור
שלב הפרויקט בוועדה מקומית
יזם: מיזם נדל"ן
השר משה 24 ר"ג


תכנון בניין חדש ברחוב השר משה בר"ג
תכנון 33 יח"ד חדשות במסגרת תמא 38/2
יזם : ארביב פנגיר
AP
שיפר יצחק 26 פ"ת


תמ"א 38/2 הריסה ובניית
בניין חדש בגובה של 9.5 קומות .
סה"כ 39 יח"ד חדשות
יזם: ש.י.א עינב
אגרון גרשון 16-18 פ"ת


פרויקט תמ"א 38/2 הריסת 2 בנייני מגורים ובניית 2 בנייני מגורים חדשים בקובה 10 קומות ברוטו סה"כ 99 יח"ד
יזם: שיא עינב
הרצל 91 פ"ת
פרויקט תמא 2/38
הריסת בניין קיים ובניית חדש בן 8.5 קומות.
בכל קומה 3 דירות סה"כ 36 יח"ד
יזם: שיא עינב


שפירא 28 כניסה ב' פ"ת


תכנון והוספת 2.5 קומות לבניין קיים במסגרת תמא 38 לבניין ברחוב שפירא 28 ב בפתח תקוה
הרחבת הדירות הקיימות עי הוספת ממד/מרפסת
יזם: מיזם נדלן
אברבנאל 16-18 פ"ת




פרויקט תמא 2/38
הריסת 2 בניינים קיימים ובניית 2 בניינים חדשים בגובה 8.5 קומות.
בכל קומה 4-3 דירות סה"כ 51 יח"ד
יזם: שיא עינב
חפץ חיים 25 פ"ת



פרויקט תמא 2/38
הריסת בניין קיים ובניית חדש בן 9.5 קומות סה"כ 21 יח"ד
יזם: שיא עינב
מתחם קדיש לוז 3-5 פ"ת


תכנון במסגרת תמ"א 38/2 בפ"ת תכנון מתחם של שלושה בניינים סה"כ 110 יח"ד חדשות
יזם: נאות המכבים
ויסוקר 12 פ"ת
פרויקט תמא 2/38
הפרויקט - 2 דירות בקומות 1-4 ודירות פנטהוז מקומות 5-9
יזם : פסגות הנדסה ויזומות בע"מ




שפירא 57-59 פ"ת



תכנון תמ"א 38/2 הריסת 2 בניינים קיימים ובניית בניין חדש עם 50 יח"ד
יזם: צים בהרי
יהודה הלוי 64 ראשון לציון


תמ"א 38/1 בראשון לציום במסגרת הפרויקט
יבוצע חיוזק ותוספת של 2.5 קומות.
יזם: סקייליין יזמות
האצ"ל 2-4 פתח תקווה
תמ"א 38/1 בפתח תקווה במסגרת הפרויקט
יבוצע חיזוק ותוספת של 2.5 קומות ל2 בניינים ברחוב האצל בעיר.
יזם: ש. קסטל




משה הס 17 פ"ת



תמ"א 38/2 הריסה ובניית
בניין חדש בגובה של 9.5 קומות .
סה"כ 39 יח"ד חדשות
יזם: קבוצת עשהאל
חפץ חיים 75 פ"ת


תמ"א 38/2 הריסה ובניית
בניין חדש בגובה של 9.5 קומות .
סה"כ 39 יח"ד חדשות
יזם: קבוצת עשהאל
מתחם ברוך קרוא יפו



פרויקט תמ"א 38/1
למתחם בו 4 בניינים לחיזוק כחלק מפרויקט פינוי בינוי ביפו ג
יזם : גאבסו
ווינגיט 6-8 פ"ת



תכנון במסגרת תמא 38/2 ברחוב וינגיט 6-8 פ"ת בפרויקט הריסה ובניה ותכנון בניין
מגורים חדש
יזם : גלובלינקס
הנוטע נתניה


